Client: The Pittsburgh Juice Company
Location: Strip District, Pittsburgh
Size: 7,000 SF
Property Type: Mixed Use, Residential/Retail
Services: Redevelopment, Construction Management, Property Management, Marketing and Leasing.
Status: Fully Occupied
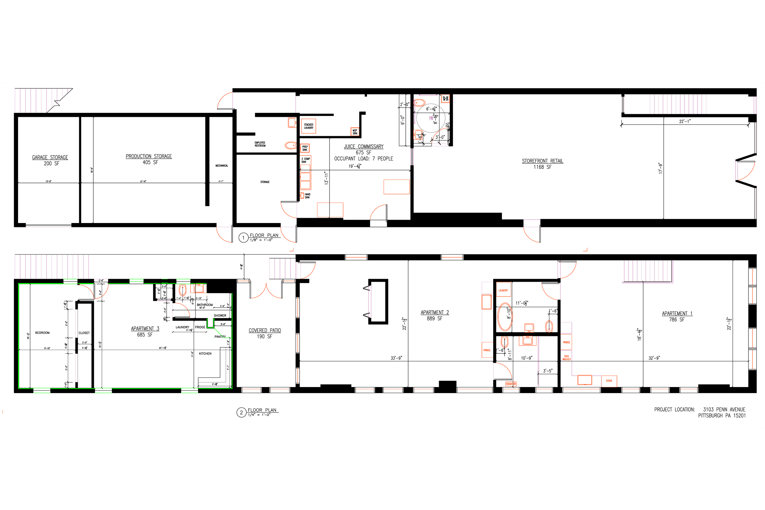
Venture RE teamed up with the Pittsburgh Juice Company who had just purchase the old 31st Street Pub at 3101 Penn Ave to relocate and expand their juice production capacity. After building out the production kitchen, over 5,550 square feet were left vacant and in need of a full renovation. Venture RE worked with the owners to create and implement the plan for the redevelopment. First by renovating the top floor in the front part of the building to accommodate two studio apartments. Then renovating the storefront to include new storefront glass and a full interior renovation to make ready for a retail tenant. Finally a third apartment was added to the rear of the second floor of the building. At the time of completion the building was fully occupied.
Planning
Venture RE coordinated the hiring and management of the architects for the project and worked with them to resolve issues and apply for permitting.
Construction Management
VRE’s construction management team managed all aspect of construction from demolition to punch-list, utilizing it’s database of local subcontractors.
Management
VRE implemented a software suite that enabled flexible leasing options, bookable meeting and event spaces, tenant collaboration, and work order management all from a single tenant portal.

 
              
              
                
              
              
             
              
              
                
              
              
             
              
              
              
             
              
              
              
             
              
              
              
             
              
              
              
             
              
              
              
             
              
              
              
             
              
              
              
             
              
              
              
             
              
              
              
             
              
              
              
             
              
              
              
             
              
              
              
             
              
              
              
             
              
              
              
             
              
              
              
             
              
              
              
             
              
              
              
             
              
              
              
             
              
              
              
             
              
              
              
             
              
              
              
             
              
              
              
             
              
              
              
             
              
              
                
              
              
             
              
              
                
              
              
             
              
              
                
              
              
             
              
              
                
              
              
             
              
              
                
              
              
             
              
              
                
              
              
             
              
              
                
              
              
             
              
              
                
              
              
             
              
              
                
              
              
             
              
              
                
              
              
             
              
              
                
              
              
             
              
              
                
              
              
             
              
              
                
              
              
             
              
              
                
              
              
             
              
              
                
              
              
            